MPV2
90 All Nations Dr, Brampton, ON L7A 5M4, Canada
For Sale
$589,000
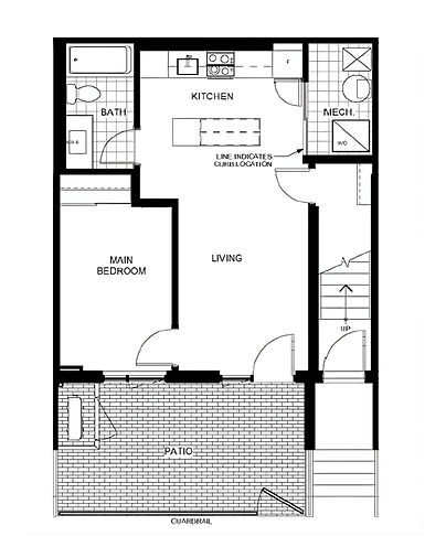
FLOOR PLAN & BUILDING IMAGE:

.png)
PROPERTY DESCRIPTION:
MPV2 brings low-carbon living to the centre of Brampton’s Mount Pleasant Village, designed under Daniels’ whole-life carbon commitment to create a sustainable community with long-term environmental impact. Located at Bovaird Dr W. and Mississauga Rd, this first phase of a 19-acre master-planned neighbourhood is just a short walk or bike ride to Mount Pleasant GO Station, offering urban convenience with modern, eco-focused design. Now available is a Toronto/Brampton condo assignment for sale: a 560 sq ft 1 bed, 1 bath suite with a private terrace, providing smart layout, contemporary finishes, and direct access to one of Brampton’s most forward-thinking communities.
AMENITIES:
BBQ Permitted, Games Room, Outdoor Patio, Party Room, Business Centre (WiFi), Indoor Child Play Area
Outdoor Child Play Area, Gym, Elevator, Parcel Storage, Storage, Pet Wash Area, Guest Suites, Meeting Room
UNIT DESCRIPTION:
Unit Type:
1 Bed | 1 Bath
Total Size:
560 sq ft plus terrace
Locker:
Parking:
Developer:
Bedroom:
Den:
1
1
Daniels
1
Bathroom:
1
More Images:
AGENT INFORMATION
REGISTER NOW
FOR MORE INFORMATION
PRICE
Listing Price:
$589,000
Original Purchase Price:
$602,900
Profit Required:
Contact us for this information
DEPOSITS
Original Deposits Paid:
$60,290
Additional Deposits Required:
0
IMPORTANT DATES
Original Purchase Date:
Contact us for this information
Estimated Occupancy Date:
February 16, 2026
Firm Occupancy Date:
Contact us for this information
OCCUPANCY FEE
Interim Occupancy Fee: